Onder optie:Singel 19, 3861 AD Nijkerk - Foto
Onder optie
+22

Singel 19 3861 AD Nijkerk € 475.000,- k.k.

  • Winkelruimte
  • Bouwjaar 1923
  • 201 m² perceeloppervlakte
  • 137 m² vloeroppervlakte

Beschrijving

Karakteristieke WINKELRUIMTE met BOVENWONING, gelegen aan de hoofdwinkelstraat in het centrum van Nijkerk.

De winkelstraat het Singel ligt strategisch tussen twee drukke pleinen en wordt omringd door diverse winkels en voorzieningen. In de directe omgeving bevinden zich bekende publiekstrekkers zoals Hema, Kruidvat, Etos en Primera. Het nabijgelegen Plein fungeert als een levendige ontmoetingsplek waar regelmatig (horeca)activiteiten plaatsvinden.

Omschrijving
Winkelruimte met bovenwoning gelegen aan het Singel 19, 19A, Nijkerk

Oppervlaktes
- Winkelruimte + magazijn: ca. 127 m²
- Berging, ca. 10 m²
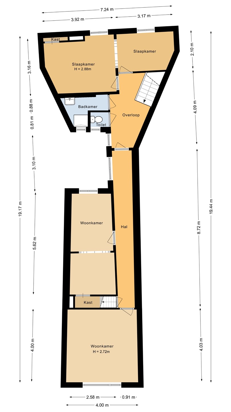
- Woonappartement: ca. 103 m² (verdeeld over twee lagen)

Kadastrale gegevens:
Kadastraal bekend gemeente Nijkerk, sectie B nummers
- 10500, groot één (1) are zevenennegentig (97) centiare;
- 10501, groot drie (3) centiare:
- 10502, groot één (1) centiare.

Bouwjaar en verbouwingen
Oorspronkelijk bouwjaar omstreeks 1923 (bron: BAG),
Bovenwoning verbouwd in omstreeks 2000, dak-/(deel)gevelrenovatie 2022,
Winkel(pui) en inrichting omstreeks 2011.

Bereikbaarheid:
Het centrum van Nijkerk is uitstekend bereikbaar, zowel via de A28 (Utrecht–Groningen) als met het openbaar vervoer. Het NS‑station bevindt zich op circa 8 minuten afstand. In de omgeving is ruime parkeergelegenheid beschikbaar, onder meer in de parkeergarage aan de Vrijheidslaan (achter de Hema), op het Gele Weiland en op het Wheemplein.

Bijzonderheden:
- Bovenwoning dient gemoderniseerd te worden.
- Mogelijke aanwezigheid van asbest (asbestclausule en ouderdomsclausule van toepassing).
- Het object wordt geleverd op basis van het as-is/where-is-principe. Dit betekent dat het pand wordt overgedragen in de huidige staat, zonder garanties van verkoper over de technische, bouwkundige, juridische of milieukundige conditie.
- Ter plaatse van de achterzijde van het pand bevindt zich een tweetal nooddeuren één van het naburige pand en één als nooddeur om te kunnen vluchten naar de plaats van het naburige appartementencomplex.

Koopvoorwaarden:
Vraagprijs € 475.000,- k.k., BTW niet van toepassing.

Aanvaarding
In overleg, de winkelruimte is thans nog verhuurd tot 30 november 2026.

Notariskeuze
Kosten voor eigendomsoverdracht en het opstellen van de leveringsakte zijn niet bij prijs inbegrepen en zullen door de koper worden voldaan.

Zekerheidstelling
Bankgarantie / waarborgsom ter grootte van 10 % van de gerealiseerde koopsom.

Disclaimer – Stooon Vastgoed
De informatie in deze aanbieding is met zorg samengesteld en dient uitsluitend ter algemene en vrijblijvende kennismaking. Aan de inhoud kunnen geen rechten worden ontleend. Een transactie komt uitsluitend tot stand na uitdrukkelijke schriftelijke goedkeuring van de eigenaar of diens gemachtigde.

Geïnteresseerden kopers worden geacht zelf en voor eigen rekening onderzoek te verrichten naar alle relevante aspecten, waaronder, maar niet uitsluitend, bouwkundige, juridische, fiscale en milieutechnische aspecten van het object.

Stooon Vastgoed handelt conform de geldende wet- en regelgeving, waaronder de Wet ter voorkoming van witwassen en financiering van terrorisme (Wwft) en de Algemene Verordening Gegevensbescherming (AVG). In dat kader kan het verrichten van cliëntonderzoek, waaronder identificatie en verificatie van de identiteit en herkomst van middelen, vereist zijn voorafgaand aan het aangaan van een overeenkomst.

Kaart

Kenmerken

Overdracht

Vraagprijs
€ 475.000,- k.k.
Status
Onder optie
Aanvaarding
In overleg
Aangeboden sinds
Zondag 8 februari 2026
Laatste wijziging
Vrijdag 17 april 2026

Bouw

Type object
Winkelruimte
Soort bouw
Bestaande bouw
Bouwperiode
1923

Oppervlaktes en inhoud

Perceeloppervlakte
201 m²
VVO
137 m²
In units vanaf
137 m²
Verkoopoppervlakte
112 m²

Indeling

Aantal bouwlagen
1

Kadastrale gegevens

Kadastrale aanduiding
Nijkerk B 10502
Perceeloppervlakte
1 m²
Omvang
Geheel perceel
Kadastrale aanduiding
Nijkerk B 10500
Perceeloppervlakte
197 m²
Kadastrale aanduiding
Nijkerk B 10501
Perceeloppervlakte
3 m²
Omvang
Geheel perceel

Media

Virtuele tour

Plattegronden